650
views
views
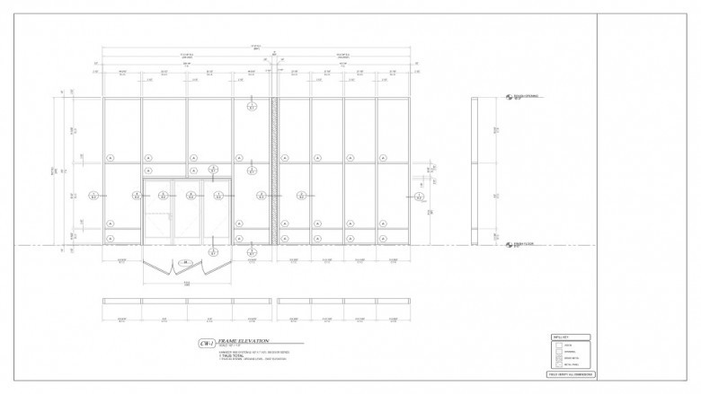
Chudasama Outsourcing provides Glazing Shop Drawing Services with Fabrication Drawings for Storefronts, Facades, and Curtain Walls in USA, Canada, UK, Australia, UAE.

Chudasama Outsourcing provides the best Glazing Shop Drawing services, With the aid of their shop drawing pros. They have a lot of expertise using shop drawings in the industrial, building, and architectural fields. We offer distinctive shop drawings for storefronts, curtain walls, all-glass entrance systems, glass railing systems, and aluminum panel walls for the glass and glazing industry.